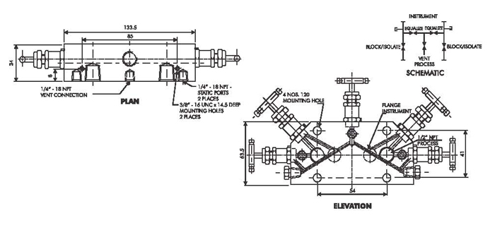
WINFLOW 5 VALVE MANIFOLD - DIRECT MOUNT
WINFLOW 5 way Valve Manifold Direct Mount are mainly used in differential pressure transmitters and static instrument applications such as pressure switches, pressure transmitter and manometers. It has two process isolation valves two vent valves and one equalization valve for pressure testings.
DESIGN FEATURES
- Forged one piece body construction for higher strength.
- Two isolation and one equalizing valve for instrument balancing applications.
- Accurate and fine control of venting.
- Metal to metal body bonnet seal for higher pressure and temperature sealing.
- Temperature rating -50°C TO 230°C.
- Mounting holes are standard to allow easy fixing to pipe stands and enclosure.
- Non rotating Vee/Ball tip design.
- Full material traceability.
- Material of construction can be supplied to meet the requirement of NACE MR-01-75.
